Modernes Haus in Stiepel
In schöner Lage unweit der Ruhr entsteht ein modernes Einfamilienhaus:
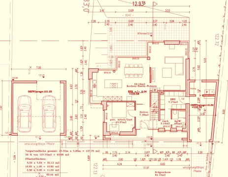
Einfamilienhaus zweigeschossig, seitliche Garage, getrennte Doppelgarage • BRI 796 m3, Wohnfläche 177 m2, Grundstück 920 m2


Ein geradliniger langgestreckter Baukörper mit Staffelgeschoss öffnet sich stufenförmig mit vollständig verglaster Fassade zum Garten.
Ein dunkler Backstein in schönen Farben bildet einen interessanten Kontrast zu den zurückgestaffelten Holzoberflächen und eloxierten Fenstern.
Zur Zeit im Rohbau. Die Vergabe erfolgte nach Einzelgewerken.
Komplettüberwachung der Baustelle durch unseren externen Bauleiter.
Entwurfsverfasser: Claudia Blanc, Andreas Mecklenburg. Mitarbeiter: Lars Dittmann
